Ingeniería de
Agitación y Mezcla para una producción eficiente
Transformamos 15 años de experiencia técnica en resultados rentables para su planta.
Diagnóstico, diseño y optimización de procesos críticos.
Nuestra Filosofía
Priorizamos la ingeniería sobre la venta.
Le brindamos la consultoría que su proceso necesita e integramos equipos nuevos solo cuando aportan valor real a su operación.
NUESTROS SERVICIOS
Somos consultores expertos en el sector. Diseñamos la solución más confiable y actual que su proceso necesita.
Consultoría de Procesos
Auditamos su línea de producción para detectar ineficiencias y cuellos de botella. Transformamos sus datos operativos actuales en estrategias de mejora rentables.
Ingeniería y Diseño
Definimos la configuración técnica exacta. Ya sea optimizando modelos de catálogo o desarrollando diseños a medida, garantizamos que la geometría y potencia sean las correctas para su operación.
Selección de Equipos
Validación técnica independiente. Seleccionamos la tecnología de agitación precisa (velocidad, tipo de impulsor, potencia) que su producto requiere, evitando el sobredimensionamiento costoso.
Provisión, Montaje e Instalación
Gestión integral del proyecto 'Llave en Mano'. Supervisamos desde la fabricación y el control de calidad hasta el montaje final y la puesta en marcha en su planta.
Sobre Nosotros
Dirección Estratégica con ADN Industrial
Liderado por el Lic. Gonzalo Villagra Schoenfeld, nuestro grupo sintetiza 15 años de evolución constante en la industria de procesos.
Combinamos la capacidad operativa real de nuestras bases fundacionales (M Y V y Mixing Process) con la exigencia global aprendida gestionando la expansión de PerMix en Latinoamérica. Integramos estándares de ingeniería alemana e israelí con una visión de negocios clara, asegurando que cada solución técnica sea, ante todo, una decisión rentable para su empresa.
Nuestros Proyectos
Reactor de Alcalinización de Cacao – Industria Alimenticia (Uruguay)
DESAFÍO: El cliente requería duplicar su capacidad productiva para responder a la demanda de cacao en polvo, manteniendo el estándar de calidad de su maquinaria europea original.
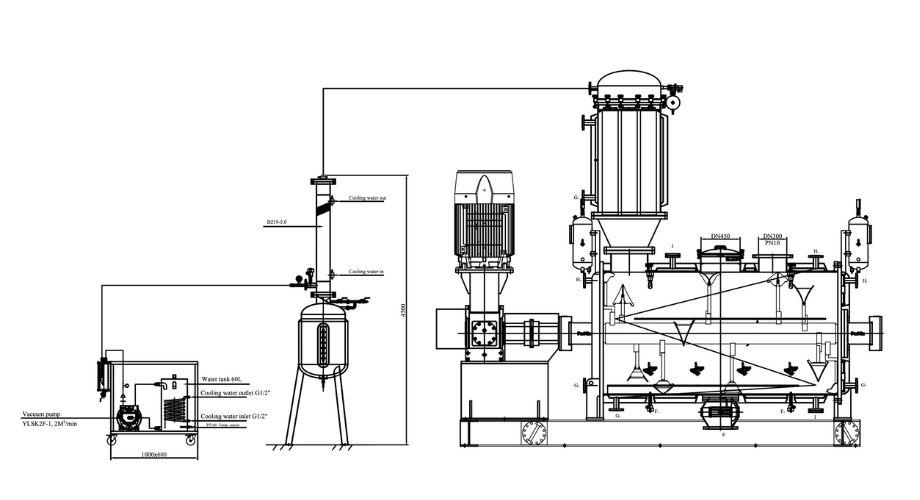
SOLUCIÓN: Ingeniería de un Reactor de Proceso de 4m3 de capacidad, diseñado para la alcalinización controlada y secado al vacío. El sistema de gran escala integra choppers intensificadores y un control térmico preciso para preservar el perfil organoléptico del cacao.
RESULTADO: Se logró un incremento del 100% en el volumen de producción, obteniendo un polvo alcalinizado de color intenso, solubilidad perfecta y calidad exportación.
Planta de Procesamiento de Extractos Botánicos – (Chile)
DESAFÍO: El cliente, líder en biotecnología vegetal (Quillaja), necesitaba escalar su producción industrial para reemplazar el uso de químicos en salud animal y vegetal. El reto era lograr una mezcla íntima de polvos con inyección de líquidos en lotes de gran volumen, manteniendo un estándar sanitario estricto para evitar la contaminación cruzada.
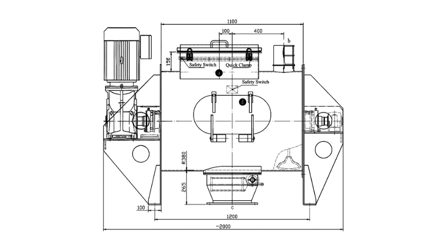
SOLUCIÓN: Ingeniería de una línea completa "Llave en Mano". El corazón es un Mezclador de Paletas (Paddle Mixer) de 6.000 Litros con camisa de calentamiento y 4 Choppers intensificadores para romper aglomerados. Se integró el sistema periférico completo: transportadores de tornillo para carga/descarga y un skid de dosificación de líquidos automatizado.
RESULTADO: Un proceso totalmente cerrado y automatizado con acabado sanitario de alta gama (Pulido Espejo Grano 320). El cliente logró estandarizar sus lotes de exportación, eliminando la variabilidad manual y reduciendo los tiempos de limpieza.
Planta de Mezclado de Especias y Condimentos – (República Dominicana)
DESAFÍO: El cliente, líder en el sector de alimentos, necesitaba optimizar la producción de sus sazonadores (bases de sal, azúcar y especias). El reto era lograr una distribución homogénea de aditivos líquidos sobre el polvo base sin generar grumos ni "pegotes", manteniendo una alta productividad.
SOLUCIÓN: Ingeniería de un Mezclador de Paletas (Paddle Mixer) de 1.500 Litros construido en Acero Inoxidable 316L para máxima sanidad. El equipo integra un sistema de inyección de líquidos mediante boquillas de aspersión y 2 Choppers de alta velocidad que disuelven cualquier aglomerado al instante durante la mezcla.
RESULTADO: Un producto final de flujo libre y sabor uniforme. El sistema incluyó la automatización de carga y descarga mediante transportadores de tornillo sinfín, eliminando el manejo manual y aumentando el rendimiento de la línea
Hablemos de su proyecto
Cuéntenos su desafío actual
Complete el siguiente formulario y nos pondremos en contacto con usted.

